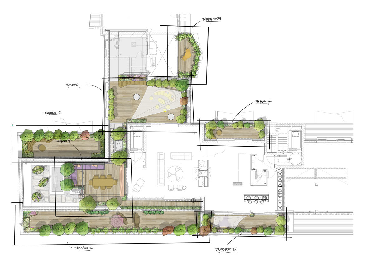
Dachbegrünung in Berlin Kreuzberg
Im dicht bebauten Berliner Stadtbezirk Kreuzberg entsteht im 5. und 6. Obergeschoss eines Mehrfamilienhauses eine variationsreiche Dachterrassenlandschaft mit insgesamt sieben Terrassen.

Grüne Oasen über den Dächern
Eine großzügige Bepflanzung am Rand der Dachterrassen sorgt für Sicht- und Sonnenschutz. Stauden, Gräser und Ziergehölze werden in individuell angefertigten oder hochwertigen Kübeln von namhaften Herstellern gepflanzt. Zierapfel, Alpenjohannisbeere, Ginster, Hortensien, Miscanthus, Lampenputzergras, Zierlauch und weitere Pflanzen umrahmen die Terrassen und schaffen so grüne, gemütliche Oasen. Ein ausgefeiltes Beleuchtungskonzept illuminiert die Dachterrassen am Abend.
Auf den Hauptterrassen im 6. Obergeschoss befinden sich großzügige Loungemöbel und ein großer Esstisch, ergänzt durch eine Pergola mit automatisiertem Raffrollo, die kühlenden Schatten spendet.
Das Projekt befindet sich derzeit in der Planungsphase der Entwurfsplanung.



Entwürfe: Christian Otto, Perspektivzeichnungen: Rachel Haase, Koloration: Team LAGADE
